Find Your
place happiness lifestyle refuge
Artfully Crafted
Options to Personalize
Smooth Process
Your Custom Home Builders
in Billings, MT
Building your own home in the beautiful Big Sky state started out as a dream. But you’re here now, searching for the right custom home builders in Billings, MT to make that dream your reality. Helgeson Homes takes pride in making the home building process easy and enjoyable. It starts with finding the perfect neighborhood, scheduling a tour, then choosing the right floor plan for your and yours. All along the way, you’ll be invited into the process to personalize the home and make it all yours. Big skies and big dreams are built here!
Explore the
Neighborhoods
The
Nines
- Neighborhood Pool
- West End Billings
- Montana Modern
Explore the Nines
Silver
Creek
- Less Maintenance
- Downsize with Upgrades
- Convenient Location
Explore Sky Vista at Silver Creek
On
Your Lot
- You may have a lot
- You may need help locating a lot
- You might already have a plan
Build From Scratch
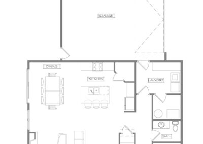
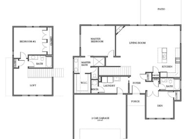
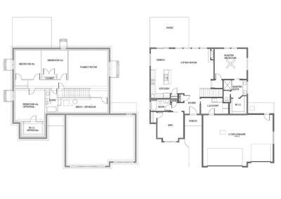
Floor Plan
Preview
“The home building journey was extremely enjoyable. Ryan is dedicated to his job and carefully sees the project through to the end like it’s his own home.”
The Iverson Family
Your Easy Build Process
Choose Your Neighborhood
Choose Your Floor Plan
Personalize
the Details
What You’ll Love
About Your Home
Build Your Family’s Happy Place
Create the space where the memories are made. With the ability to put your fingerprints on our innovative plans, the creative collaboration will make a home you love meeting all of your top values and priorities.
- Montana Modern Design
- Beautiful Upgraded Interiors
- Close to Elder Grove Schools
- Neighborhood pool + Clubhouse
- Peaceful Living + Convenient Amenities
Downsized & Upgraded Homes
Size is no longer needed. These homes are designed for those who want a lower-maintenance, lock and leave lifestyle, but don’t want to give up the nice neighborhood or upscale home amenities.
- Upscale Amenities
- Low Maintenance
- Personalize Your Plan
- Northwest Billings Corridor
- Quiet, but Convenient Location











